Sale Agreed €300,000 - Residential
Charming and rustic 3-Bedroom Cottage in Breansha, Emly, Co. Tipperary – Stunning Setting with breath-taking views of surrounding hinterland.
Nestled in the heart of the Tipperary countryside, this beautifully finished 3-bedroom cottage offers a rare combination of rustic charm, and a large 2.1 Acre site located between the villages of Lattin and Emly.
Set on expansive private grounds, the property provides a peaceful retreat while still being within easy reach of nearby towns and essential amenities. The interior offers ample living rooms and bedrooms with the added bonus for plenty scope for extension in the future subject to planning permission
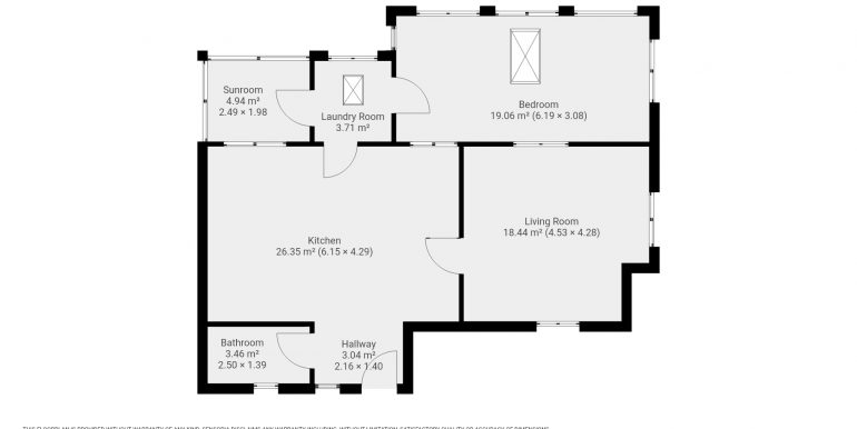
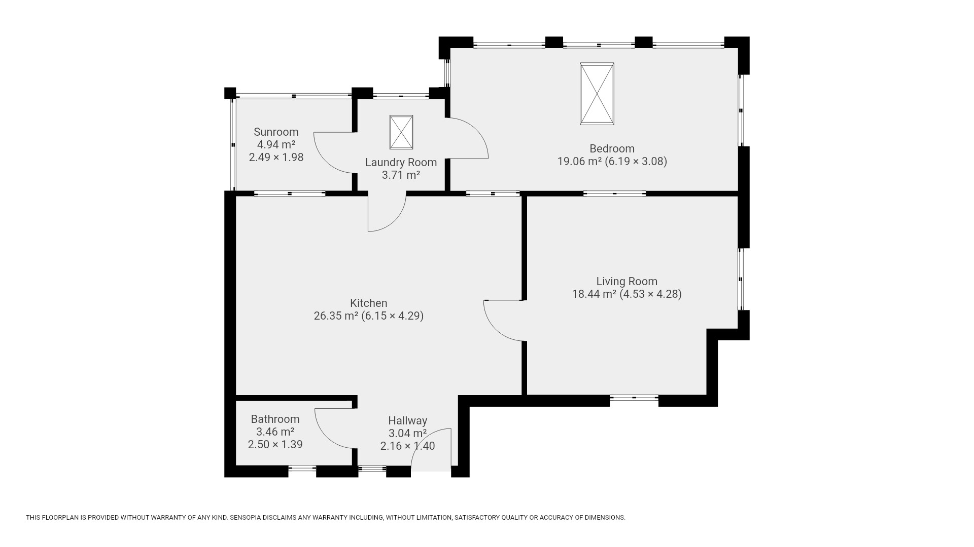
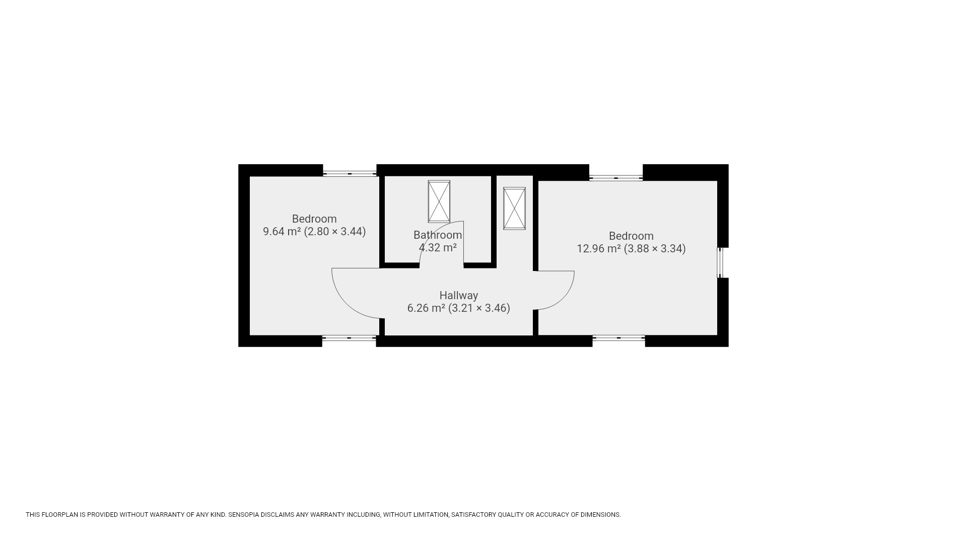
Accommodation includes Entrance Hallway, Kitchen/ Dining Room, Bathroom, Living Room, Laundry Room, Sunroom, Bedroom 3 First Floor contains 2 further bedrooms and Bathroom
The vast 2.1 acres site offers a peaceful and private recluse with ample room for further development to the existing property if required
Additionally there is a detached Shed/ Workshop/ Garage ideal for a wide variety of recreational uses
Viewings are strictly by appointment only and please call 062-31986 to arrange a viewing
Features
- Private & Peaceful – Set on expansive grounds, offering a tranquil countryside retreat.
- Located between the Villages of Emly and Lattin on the R515
- Property Eircode E34 KW02
- Standing on a landholding of 2.1 Acres
- Detached Garage / Workshop adjacent
- Property in turn walk in conditon
Contact us now to arrange a viewing
062 31986 Or info@ogradyauctioneers.ie































